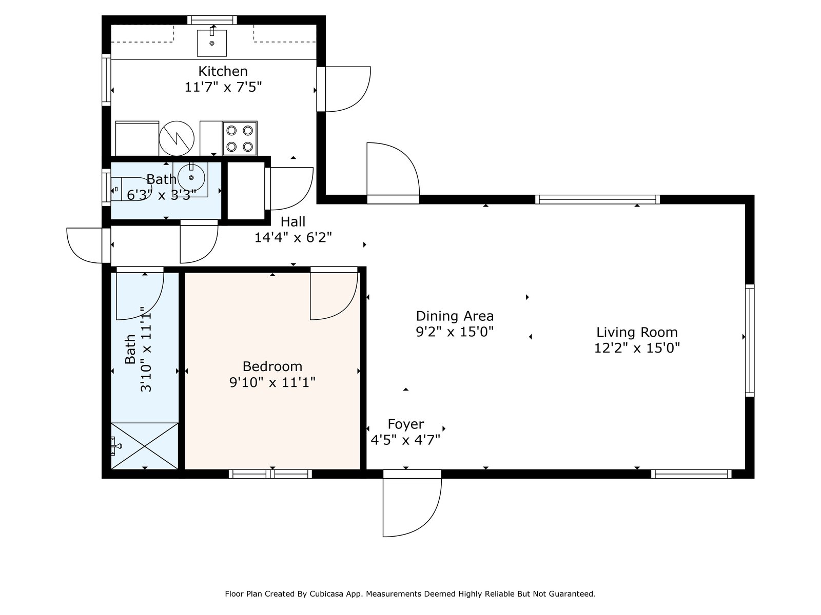
Welcome to 418 Hillside Drive, a charming 1-bedroom, 1-bathroom cabin nestled in the peaceful neighborhood of San Lorenzo Woods. This cozy retreat offers 728 square feet of living space on almost 1/3rd of an acre, providing a perfect blend of privacy and proximity to the town of Boulder Creek.
Built in 1946, the home retains its original character, with timeless features that give it an inviting, rustic feel. The expansive lot offers plenty of space to enjoy the natural beauty of the area, with majestic stands of redwood trees creating a serene and enchanting atmosphere.
The living room and kitchen both have direct access to a private back deck. This serene outdoor space is perfect for relaxing, entertaining, or simply soaking in the tranquil environment of the Santa Cruz Mountains. Whether you're seeking a vacation getaway, a full-time residence, or an investment opportunity, this property has endless potential. The location is ideal for those looking to retreat to nature while still enjoying an easy commute to the Bay Area.
With its welcoming community, beautiful surroundings, and easy access to local amenities, 418 Hillside Drive offers the best of both worlds. Don't miss the opportunity to own a piece of paradise, where charm, natural beauty, and convenience come together.
Property Details
Video
Photos
3D Tour
Floor Plan
Map
Presented By
